Graudu torņi

SYMAGA graudu torņi

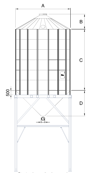
Atkraušanas torņa balsta konstrukcija

Atbalsta konstrukcija atkraušanas bunkuriem ar brīvu kopējo augstumu 5 metri kravas vai vilciena tranzītam.

Torņi ar plakano grīdu

Atbalsta konstrukcija atkraušanas bunkuriem ar brīvu kopējo augstumu 5 metri kravas vai vilciena tranzītam.

Torņi ar konusu

Atbalsta konstrukcija atkraušanas bunkuriem ar brīvu kopējo augstumu 5 metri kravas vai vilciena tranzītam.

Torņi ar konusu bez riņķa

Atkraušanas bunkuri ar konusu